方案展示




設計說明
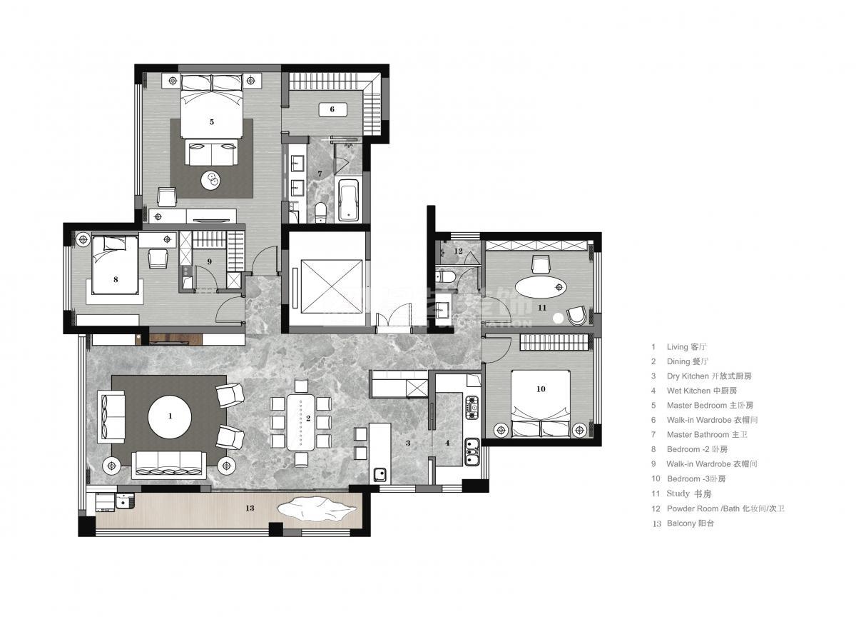
本案空間簡潔,色調以黑白灰為主,增加一些木質的護墻板,空間整體給人一份寧靜,在大城市的嘈雜,回到家給居住在這個空間會平復心靈,拿一份報紙一本書,靜靜感覺。
[展開]-
星藝設計師的其它設計案例
-
現代風格的其它設計案例
廣東星藝裝飾集團廣州有限公司,一起尋找好裝修!
本案空間簡潔,色調以黑白灰為主,增加一些木質的護墻板,空間整體給人一份寧靜,在大城市的嘈雜,回到家給居住在這個空間會平復心靈,拿一份報紙一本書,靜靜感覺。
[展開](c)Copyright 2021 廣東星藝裝飾集團有限公司廣州分公司 版權所有 粵ICP備12080332號 公安部備案號 44010602004978號