方案展示






設計說明
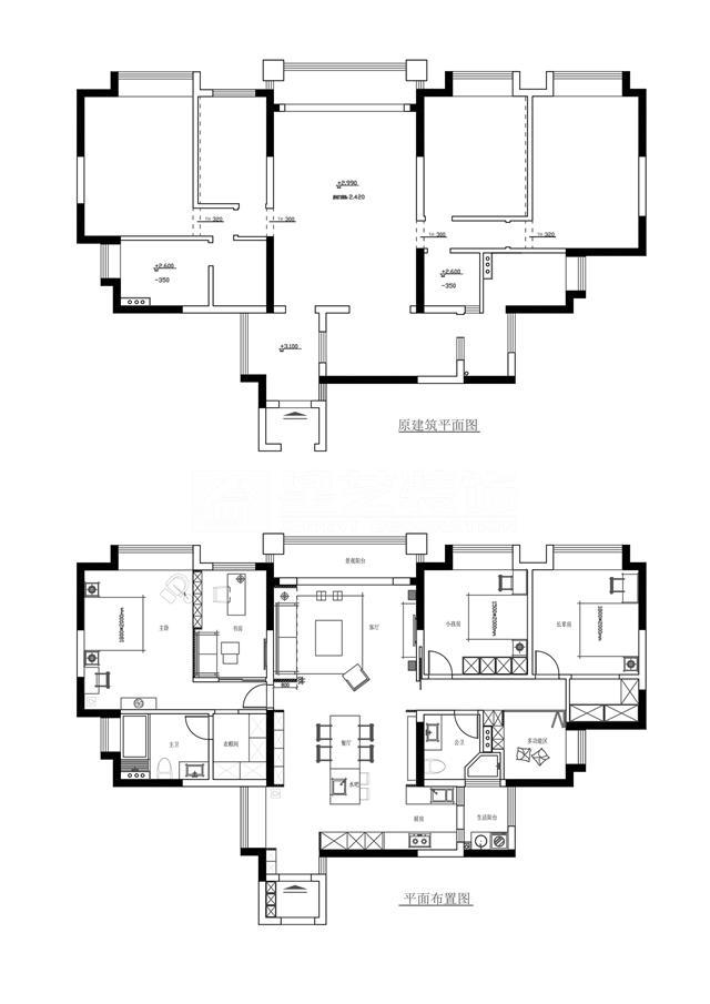
原有的戶型客廳、餐廳比例很不合理,通過戶型改造,客廳、餐廳及廚房空間動線更合理、空間更寬敞了,簡約的設計讓家更加放松、自在、舒適。
[展開]-
星藝設計師的其它設計案例
-
簡約風格的其它設計案例
廣東星藝裝飾集團廣州有限公司,一起尋找好裝修!
原有的戶型客廳、餐廳比例很不合理,通過戶型改造,客廳、餐廳及廚房空間動線更合理、空間更寬敞了,簡約的設計讓家更加放松、自在、舒適。
[展開](c)Copyright 2021 廣東星藝裝飾集團有限公司廣州分公司 版權所有 粵ICP備12080332號 公安部備案號 44010602004978號