方案展示









設計說明
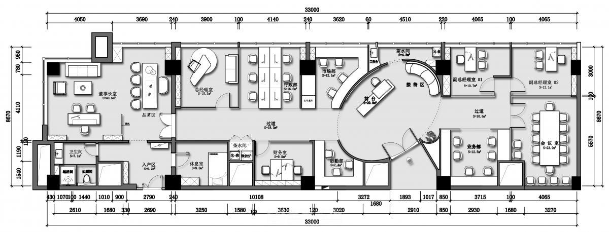
規整的體塊從來不缺少,思緒回歸空間,弧形的走線淡化固有形式的緊張感,為空間平添趣味感,穩重之余微顯灑脫柔美、謙和之余挑露個性與活力。
[展開]-
星藝設計師的其它設計案例
-
現代風格的其它設計案例
廣東星藝裝飾集團廣州有限公司,一起尋找好裝修!
規整的體塊從來不缺少,思緒回歸空間,弧形的走線淡化固有形式的緊張感,為空間平添趣味感,穩重之余微顯灑脫柔美、謙和之余挑露個性與活力。
[展開](c)Copyright 2021 廣東星藝裝飾集團有限公司廣州分公司 版權所有 粵ICP備12080332號 公安部備案號 44010602004978號